Biens immo

Résidence de 6 appartements à Cruchten

Résidence de 6 appartements à Cruchten Appartement 03
Retour à la liste
Résidence de 6 appartements à Cruchten
Nouveau
Résidence de 6 appartements à Cruchten
71, rue Principale 7420 CruchtenLuxembourg
713 754 €
REF: Cruchten-APP03
Vente

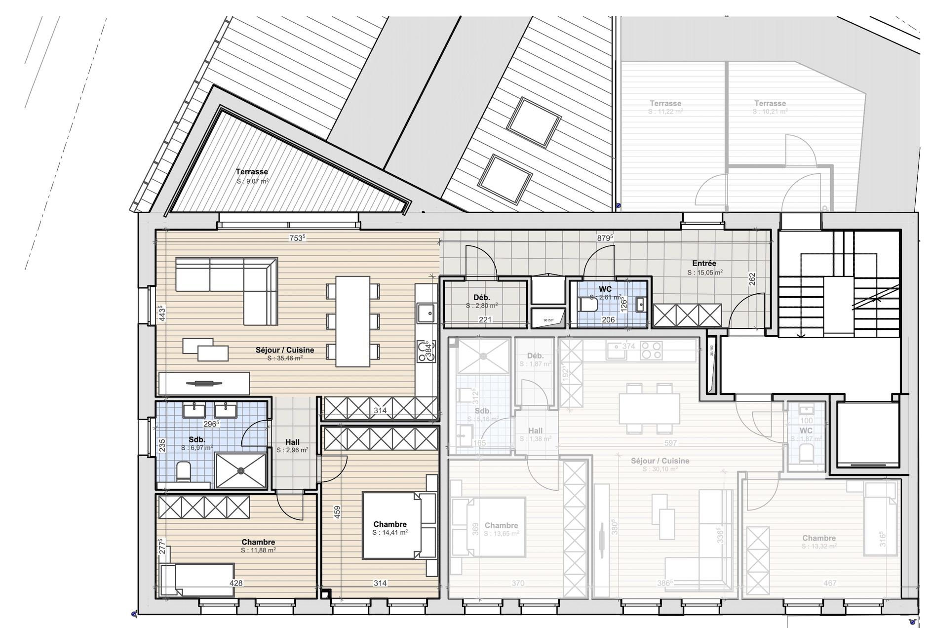
Appartement de standing à vendre à Cruchten – 92,87 m² avec terrasse.

Découvrez cet appartement exceptionnel situé au 1er étage d'une résidence moderne au cœur de Cruchten. Avec une superficie de 92,87 m², ce bien allie espace, confort et tranquillité, offrant un cadre idéal pour les familles ou les professionnels.

Caractéristiques principales :
• Espace de vie lumineux : une cuisine ouverte sur un salon, parfait pour recevoir ou se détendre.
• 2 chambres : offrant confort et intimité.
• Terrasse privative : un espace extérieur idéal pour profiter des moments en plein air.
• 2 emplacements intérieurs et une cave, inclus dans le prix de vente.

Confort et équipements modernes :
• Fenêtres en PVC avec triple vitrage et stores/volets roulants électriques en aluminium pour un contrôle optimal de la lumière naturelle.
• Ventilation double flux : garantissant une isolation thermique et acoustique de haut niveau.
• Ascenseur et système de vidéophonie : pour une sécurité et un confort accrus.

Prix attractif et conditions avantageuses :
• Le prix inclut la TVA à 3 % (sous réserve d’acceptation par l’administration), ainsi que deux emplacements intérieurs et la cave.
• Aucun ajustement du prix en cas d’indexation.

Ce bien rare est une opportunité unique d’allier modernité, élégance et confort de vie dans un cadre paisible et verdoyant.

Propriétés

  • Nombre de pièces7
  • Etages1
  • Balcon/Terrasse1
  • Livings1
  • Salles à manger1
  • Salles de douche1
  • Surface habitable92,87
  • Chambres à coucher2
  • Débarras1
  • WC invités1
  • Buanderie1
  • VitrageTriple
  • ChauffagePompe à chaleur air/air
  • Classe énergieA
  • Classe isolationB
  • ÉtageNiveau 01
  • ÉtatNouvelle construction

Aménagements

  • Ascenseur
  • Buanderie
  • Animaux acceptés
  • Accès handicapé
  • Technique de ventilation moderne
  • Chauffage central
  • Chauffage au sol

Performance énergétique

Performance énergétique